
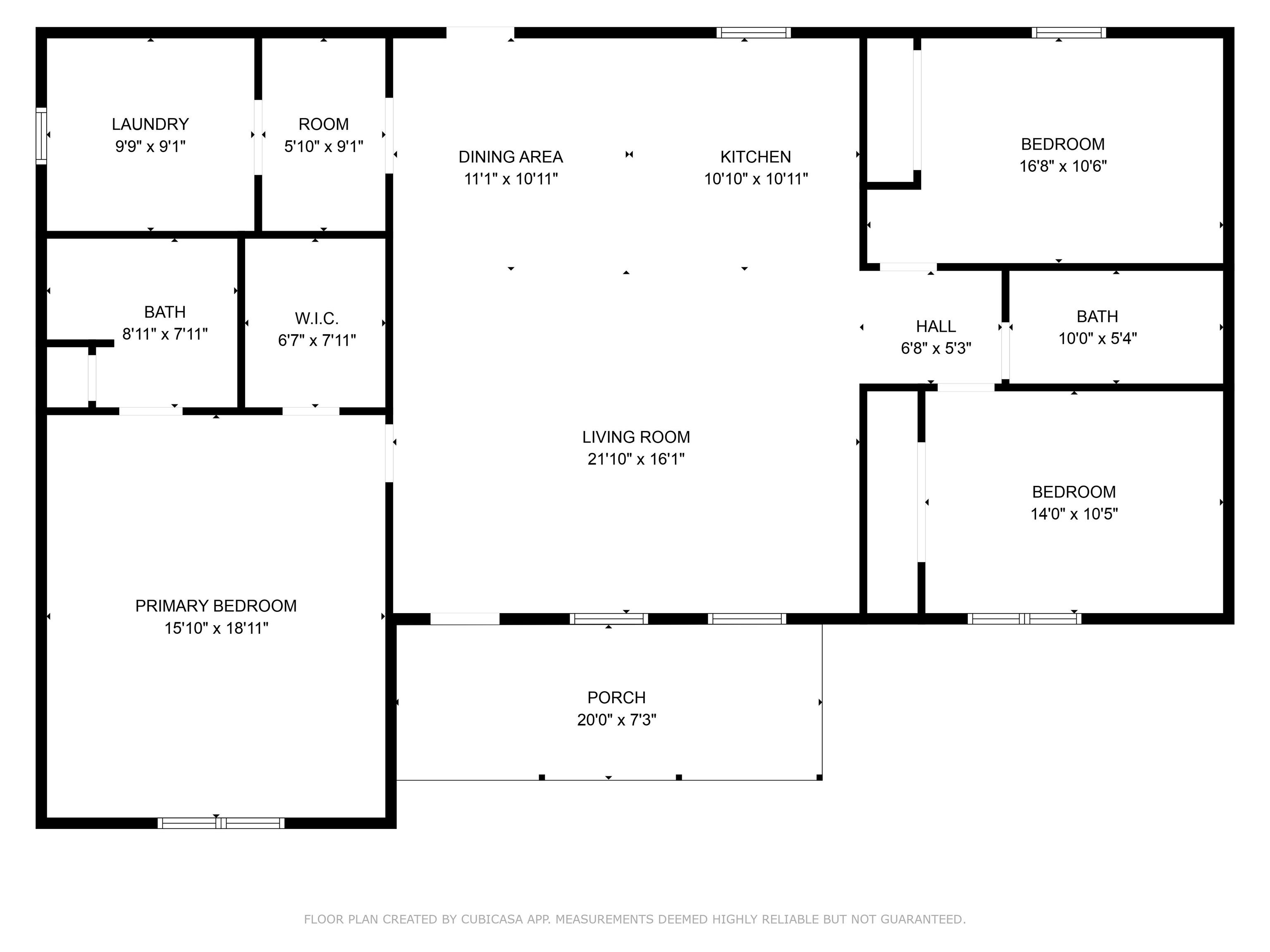
New Construction between Marion and Mullins! This beautiful3-bedroom, 2-bath home offers approximately 1,744 sq. ft. ofopen-concept living space on a spacious 0.84-acre lot just offHighway 76. Features include luxury vinyl plank (LVP)flooring throughout, modern kitchen appliances, and aconcrete driveway with parking pad. Enjoy the convenienceof Marco Water, no HOA, and no city taxesall in a peacefulcountry setting. Move-in ready and waiting for its new owner!
| MLS # | 2518869 |
|---|---|
| Listing Type | For Sale |
| Style | House |
| Sub-Type | New Construction |
| Status | Active |
| Year | 2025 |
| Days On Site | 97 |
| Listing Provided By | Swamp Fox Realty & Appraisals | Will Causey |
| Bed(s) | 3 |
|---|---|
| Bath(s) | 2 Total |
| SQ Feet | 1,744 |
| Story(s) | 1 |
| Zoning | None |
| Acreage | 0.84 |
| Cooling Yes / No | Yes |
|---|---|
| Cooling | Central Air |
| Heating Yes / No | Yes |
| Heating | Central |
| Furnished | Unfurnished |
| Appliances | Range |
| Construction Materials | Vinyl Siding |
|---|---|
| Foundation Details | Slab |
| Lot Features | Rectangular, Rectangular Lot |
| Parking Features | None |
|---|
| Utilities | Electricity Available, Septic Available, Water Available |
|---|---|
| Sewer | Septic Tank |
| State | SC |
|---|---|
| County | Marion |
| City | Mullins |
| Zip Code | 29574 |
| Area | 31A Other counties in South Carolina |
| Community Name | Not within a Subdivision |
| School District | Mullins High School |
| Elementary School | McCormick Elementary School |
| High School | Mullins High School |
| State | SC |
|---|---|
| County | Marion |
| City | Mullins |
| Zip Code | 29574 |
| Area | 31A Other counties in South Carolina |
| Community Name | Not within a Subdivision |
| School District | Mullins High School |
| Elementary School | McCormick Elementary School |
| High School | Mullins High School |